Projet lauréat des mandats d’étude parallèles pour la transformation d’un immeuble mixte à la rue de la Barre. Création de logements et d’un centre de conférence, rénovation des surfaces administratives, et aménagement des combles.
Introduction
Situé à quelques encablures du Château Saint-Maire, sur un versant de la colline de la Cité – colline qui symbolise à elle seule le passé médiéval de la ville de Lausanne – l’immeuble de la rue de la Barre 8 jouit d’une situation historique et privilégiée. Il se dresse face au tunnel et s’élance sur le flanc de la colline, sculptée autrefois par les rivières du Flon et de la Louve.
L’essence du projet
MIX&MATCH tient autant de la recherche de mixité, de flexibilité, de modularité et de fonctionnalité des espaces, que de la recherche d’une correspondance entre la destination des différents étages et les caractéristiques intrinsèques du bâtiment – notamment orientation, ensoleillement et expression de la façade.
Cadre d’intervention
Le projet s’inscrit dans le cadre de la rénovation et de la transformation de l’immeuble existant, actuellement composé de deux corps de bâtiment, à savoir. Le premier corps de bâtiment – le plus ancien – s’inscrit dans la continuité de la rue de la Barre et marque par son pignon l’extrémité nord de la Cité. Les étages supérieurs sont convertis en logements. Ceux-ci bénéficient de trois grandes façades permettant de jouir d’un éclairage naturel et d’une vue panoramique sur la ville.
Le second corps de bâtiment, venu se greffer ultérieurement sur le flanc de la colline en contrebas du bâtiment, est destiné à accueillir de nouvelles surfaces de bureaux (sur les 5 niveaux). L’affectation est en correspondance avec l’expression de la façade, plus contemporaine et spécifique sur cette partie du bâtiment. Les bureaux restent accessibles par l’intermédiaire du chemin de Couvaloup.
Faisant partie d’un ensemble architectural et patrimonial protégé, les interventions sur la forme et l’enveloppe du bâtiment sont minimisées et soucieuses du respect d’une bonne intégration dans l’environnement bâti existant.
Aspirations et cibles du projet
Tenant compte des contraintes du bâtiment susmentionnées, MIX&MATCH est conçu de manière à donner la plus grande FLEXIBILITÉ aux futurs utilisateurs. La modularité des espaces et la multiplicité des usages constituent le noyau dur de la rénovation et transformation du bâtiment.
Les futurs logements de la rue de la Barre s’adaptent aux différentes formes d’habitation et de cohabitation afin de permettre aux utilisateurs de divers horizons de s’approprier les lieux; personnes vivants seules, étudiants, familles monoparentales ou encore personnes âgées. La proximité du centre-ville et le dynamise du quartier sont propices à la création de logement de taille modeste (studio, 2 pièces).
En matière de surfaces de bureaux, l’offre est vaste dans le quartier. Il s’agit donc de proposer des solutions innovantes et appropriées aux attentes des travailleurs de demain. Celles-ci sont caractérisées par des espaces ouverts qui favorisent la communication et les échanges. Ces solutions proposent également des aménagements de type «multizones» qui offrent une large variété d’espaces et de fonctions; lire, présenter, se concentrer, recycler, mettre en œuvre, se documenter, se concerter, se détendre, rencontrer, archiver, etc.
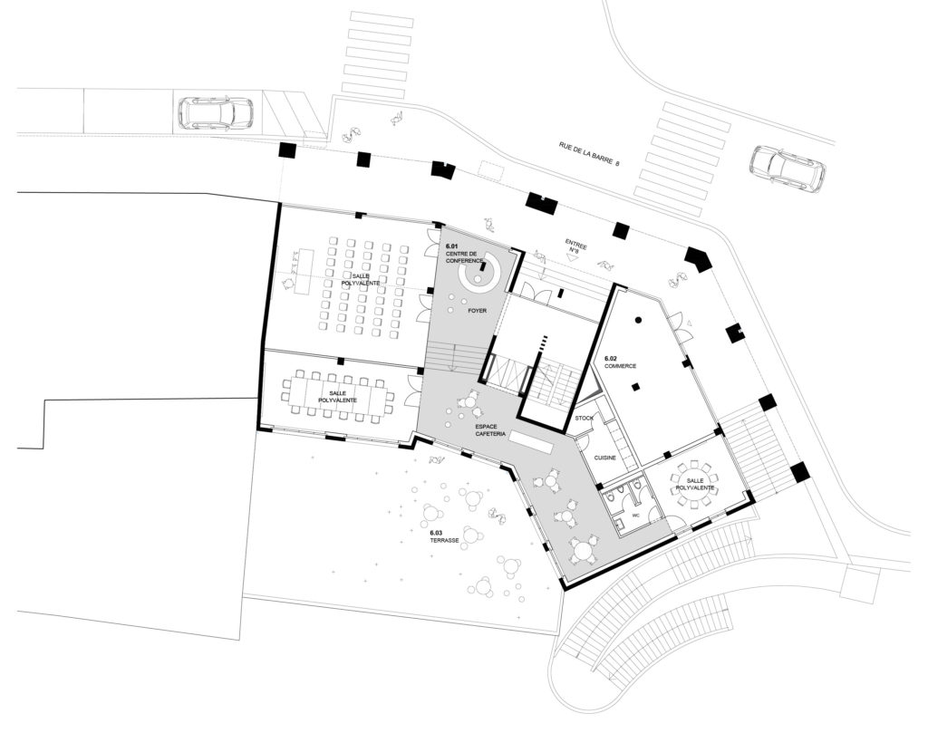
Très exposé à la vue des passants, le projet propose la création d’un commerce et d’un espace polyvalent au rez-de-chaussée de la rue de la Barre. Ce dernier est constitué de trois salles polyvalentes, d’un foyer et d’une cafétéria qui jouit de l’accès à la terrasse. L’espace de conférence tisse un lien entre les deux corps de bâtiment qui constituent l’ensemble et leur destination réciproque. Il permet d’articuler les différentes affectations, de réunir les utilisateurs de l’immeuble et d’ouvrir le bâtiment sur l’extérieur afin d’animer quelque peu le quartier si choyé de la Cité.
Images de synthèse : BOCO studio






